Judgement day approaches for 156 West End Lane
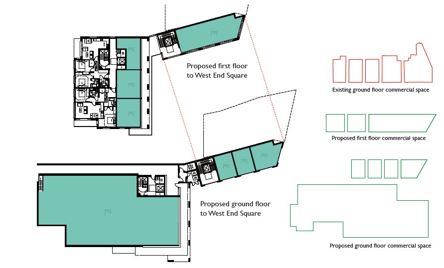
The proposals for 156 West End Lane (aka Travis Perkins) roll on. Two(?), three(?) years after it was first announced, are we into the final stretch? The latest planning application has opened for comments and the deadline is 10th November. To … Continue reading →










